

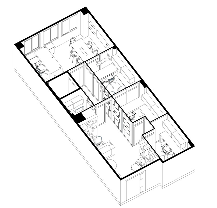
Dinnova es un espacio arquitectónico vanguardista. La composición del diseño responde a un estilo bien marcado del glam e industrial, donde el estudio minucioso de los materiales prima; Genera un perfecto equilibrio de elegancia y sobriedad que pueda traducirse en confort para sus usuarios. Su estructura refleja el uso de líneas y trazos limpios, que le dan carácter de estilo propio, en conjunto de juego entre colores neutros y luces cálidas a razón de matiz. El Studio se distribuye en varios espacios, la distribución de los espacios es el claro ejemplo de un análisis ergonométrico para la correcta funcionalidad del ambiente comenzando por el recibidor, el departamento de diseño y la oficina principal.

A penas ingresamos se impone, por un lado, la pared acabada en hormigón pulido al acido, El counter -concebido a medida de las necesidades de la oficina y siguiendo la línea monocromática- esta recubierto en porcelanatos de tono obscuro y de tono gris claro, que se complementa de forma sutil con uno de los libreros en forma de ramas que viene a ser el distintivo de los espacios. Detrás de esto tenemos un útil perdido acabado en un tono maderado de pino, el cual cuenta con nichos iluminados con detalles en dorado que dan realce al mobiliario.

Por el otro lado, encontramos otra variante de librero en forma de ramales cerrados, el cual cuenta con detalles puntuales de color dorado, cristales y un sin número de libros que sirven como referentes e inspiración. Todo el espacio está cubierto por un juego de rieles de spots obscuros que resaltan como guía imaginaria los elementos claves distribuidos a través de la oficina.

Los ambientes interiores contienen el manejo de vegetación artificial convirtiéndose en un elemento importante para el estilo, la estética industrial logra mantenerse en los espacios creando un lenguaje visual arquitectónico de vanguardista.

La oficina principal mezcla tonos maderados con champagne en el escritorio, así como en la mesa de conferencia, crean un ambiente flexible, moderno y acogedor, donde el espacio toma facilidad en cuanto a la movilidad de cada visitante de manera cómoda al sitio. Aquí nos encontramos con una lampara de escritorio clásica de la arquitectura, la Artemide – Tolomeo. El televisor junto a la mesa de reuniones se encuentra sobre un patrón maderado en gris -afín al tramado que encontramos en demás ambientes de la oficina-, así como una imponente lampara colgante que proyecta iluminación puntual.



