

La isla de San Cristóbal, cuenta con múltiples atractivos naturales característicos del archipiélago de Galápagos, que son un punto focal para actividades particulares de índole ecológica, pero también son el paraje ideal para entusiastas de la pesca deportiva artesanal, surfistas aguerridos, hasta trotamundos buscando un lugar de sosiego, en si todos convergen en el mismo destino pacífico que cada vez más ofrece variadas comodidades y servicios en todos los estratos.

Actualmente existen algunas propuestas de la administración local para refrescar la infraestructura existente, desde el malecón hasta los muelles. Estos parámetros invitan a una explotación y desarrollo del potencial turístico de la isla no debidamente aprovechado hasta el momento, dando cabida a la implementación de nuevos proyectos hoteleros con conceptos diferentes y de vanguardia.
El master plan de este centro turístico hotelero se centra principalmente en la preocupación del viajero por el impacto al frágil ecosistema de Galápagos. Es así que desde la concepción arquitectónica se ha establecido un modelo sostenible, abierto y sensato con el medio urbano insular, que aunque contraste urbanísticamente con el entorno inmediato, en compensación a la vez se armoniza con el real entorno natural aledaño y predominante.

La fusión de materiales y diseño de vanguardia en conjunto con el uso de técnicas de ahorro energético; tales como Sistemas de reutilización de A.A.S.S, implementación de Cubiertas Verdes y elementos de sombra que ayudan a regulación de la temperatura del edificio, aparte esto también ayuda a optimizar el uso de los sistemas de A.C., además para contribuir con este objetivo como segunda cubierta se han ubicado zonas de Paneles Solares para soporte y alimentación paralela al sistema eléctrico general y a la vez coadyuvan con el fin del mejoramiento de la temperatura interna del edificio.

Las zonas de circulación tanto vertical como horizontal son de tipo semi-abiertas potenciando la ventilación natural. La parte emblemática de este proyecto se puede considerar son sus fachadas entramadas con Jardines Verticales fieles a su estilo deconstructivo el cual se refleja claramente en el resto de formas del conjunto, sin olvidar que la principal finalidad de estos jardines es el de también reforzar el mejoramiento de las condiciones climáticas y a su vez el de servir como barrera visual y acústica dado que el entorno inmediato no es muy favorable para las condiciones de confort necesarias.

Por otro lado otro punto importante en este proyecto es el uso de materiales durables y vernáculos de la isla, como la piedra Basáltica Volcánica utilizada en revestimientos exteriores y la madera de Matazarno también utilizada en revestimientos y de modo estructural que afianzan más la comprometida intensión de sostenibilidad. Todo esto combinado con un sistema constructivo ágil basado en prefabricación desde el continente, se reduce notablemente el impacto ambiental y los tiempos de ejecución en obra.

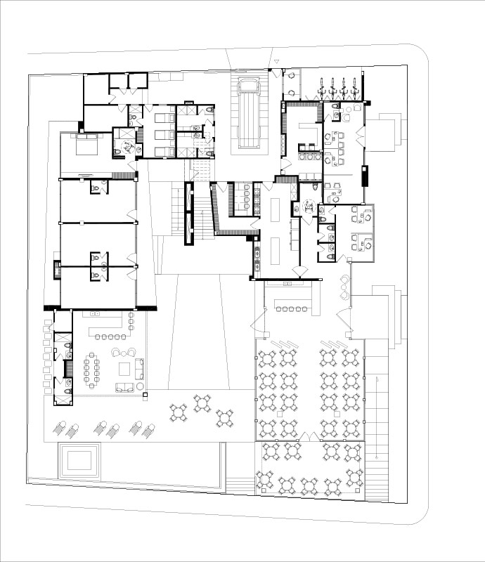
La distribución de espacios en la primera planta acoge las áreas de Lobby, Bar, Restaurant, Oficinas administrativas, externamente hacia la calle funcionara la agencia de turismo y alquiler de bicicletas, externamente hacia el patio interior se ubicaran el área social compuesta por la Pérgola Bar y B.B.Q., piscinas, jardines, habitación para discapacitados y locales para uso de Librería, Souvenirs y Spa. Hacia la parte posterior las zonas de servicio, cocina, carga y descarga.
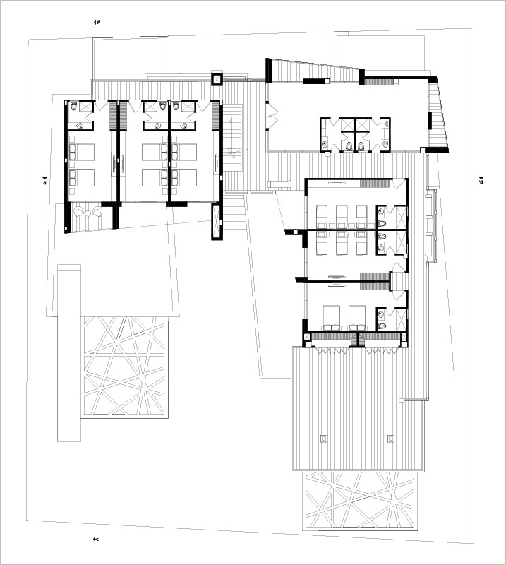
En la segunda Planta se dispondrán las primeras 6 habitaciones con vista al mar y terrazas verdes, también el gimnasio y área exterior cubierta para Yoga. En la tercera planta se ubicarán las últimas 7 habitaciones también todas con vista al mar y la Suite Administrativa. Finalmente en la Cubierta se dispondrán más terrazas verdes, miradores hacia el mar y la cubierta de Paneles solares.
En síntesis se espera con este proyecto poder ofrecer un oasis de tranquilidad y confort, que a la vez contribuya importantemente con el mejoramiento del perfil urbano y un frente nuevo en el malecón de Puerto Baquerizo Moreno en San Cristóbal.



